Bồn Cầu Điện Tử TOTO CS769DRW6#XW Kèm Nắp Rửa Điện Tử WASHLET Dòng C5 – TCF6531Z (220V) được phân phối chính hãng tại Khánh Trang Home, giao hàng và lắp đặt miễn phí TP.HCM, bảo hành chính hãng, bảo trì nhanh tận nhà trong 2 giờ.

Phòng tắm là khoảng không gian riêng tư, nơi cần sự thoải mái khi đặt chân vào. Thấu hiểu tâm lí khách hàng, hãng TOTO đem đến trải nghiệm đi vệ sinh thư giản thông qua việc cho ra đời mẫu bồn cầu mới. CS769DRW6 là minh chứng cho điều đó. Cùng tìm hiểu điều đặc biệt để tạo nên sự khác biệt của em bồn cầu này nhé!
Thông số kỹ thuật của bồn cầu TOTO CS769DRW6 nắp rửa Washlet
- Mã sản phẩm: CS769DRW6#XW Xuất xứ: Việt Nam
- Nắp rửa điện tử: TCF6531Z Xuất xứ: Malaysia
- Tên sản phẩm: Bồn cầu nắp rửa điện tử Washlet TOTO
- Kích thước: 700L x 395W x 746H mm
- Màu sắc: Trắng
- Hệ thống xả: Tornado
- Loại xả: 2 nút nhấn 4.5/ 3.0 (L)
- Thiết kế: Thân dài
- Tâm xả: 305 mm
- Áp lực nước: 0.05 ~ 0.70 MPa
- Nguồn điện: 220V, 50/60Hz
- Lưu ý: Bao gồm van khóa, gioăng đế

Các đặc điểm nổi bật của bồn cầu TOTO CS769DRW6 nắp rửa Washlet
- Bồn cầu được thiết kế 2 khối, với thân kín tạo nên sự sang trọng, giúp dễ dàng vệ sinh hơn.
- Men sứ chống dính, chống bám bẩn Cefiontect cực tốt, giúp loại bỏ các vết bẩn cứng đầu.
- Nước điện phân Ewater+ phun sương lòng bàn cầu, giúp loại bỏ dễ dàng vi khuẩn không thể nhìn thấy bằng mắt thường.
- Với hệ thống xả xoáy Tornado, xả siêu mạnh ít gây tiếng ồn những vẫn tiết kiệm được lượng nước khi sử dụng.
- Có bảng điều khiển từ xa (không dây) với 2 chế độ người dùng.
- Tính năng tự động phun sương và làm sạch bồn cầu và vòi rửa bằng cách ngăn vi khuẩn, giúp đảm bảo vệ sinh.
- Được thiết kế với 2 chế độ rửa trước, rửa sau massage linh hoạt, giúp điều chỉnh vị trí vòi rửa. Đặc biệt là người lớn tuổi, trẻ em, người khuyết tật.
- Đặc biệt: sấy khô, điều chỉnh nhiệt độ vòi rửa, sưởi ấm bệ ngồi với 3 cấp độ.
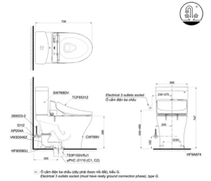
Bản vẽ kĩ thuật của bồn cầu TOTO CS769DRW6 nắp rửa Washlet

Địa chỉ mua bồn cầu điện tử TOTO CS769DRW6 nắp rửa Washlet?
Nếu bạn muốn mua bồn cầu thông minh TOTO CS769DRW6 chính hãng, với nhiều ưu đãi tuyệt vời. Hãy liên hệ với Không Gian Bếp Xinh qua số hotline: 0898.888.516 để được tư vấn và hỗ trợ miễn phí. Đừng quên truy cập vào website: https://old.old.old.khonggianbepxinh.com/ để biết thêm về nhiều sản phẩm thiết bị vệ sinh và thiết bị nhà bếp nữa nhé!
Tham khảo trọn bộ sản phẩm tại: Bồn cầu toto, bồn cầu toto 2 khối, bồn cầu thông minh toto, bồn cầu, thiết bị vệ sinh toto





Đánh giá
Chưa có đánh giá nào.