Bồn Cầu Điện Tử TOTO CS948DW14#XW Kèm Nắp Rửa Điện Tử WASHLET Dòng C5 – TCF24410AAA (220V) được phân phối chính hãng tại Khánh Trang Home, giao hàng và lắp đặt miễn phí TP.HCM, bảo hành chính hãng, bảo trì nhanh tận nhà trong 2 giờ.

TÀI LIỆU MÔ TẢ SẢN PHẨM
THÔNG TIN MÔ TẢ SẢN PHẨM
Nếu bạn đang tìm kiếm một chiếc bồn cầu hai khối của hãng thiết bị vệ sinh TOTO có đầy đủ các tính năng nhưng có giá thành vô cùng hợp lí thì CS948DW14 đi kèm với nắp rửa điện tử Washlet TCF24410AAA là sản phẩm dành cho bạn. Cùng Không Gian Bếp Xinh tìm hiểu về em bồn cầu này ngay nhé!
Thông số tổng quan về bồn cầu TOTO CS948DW14 nắp rửa Washlet

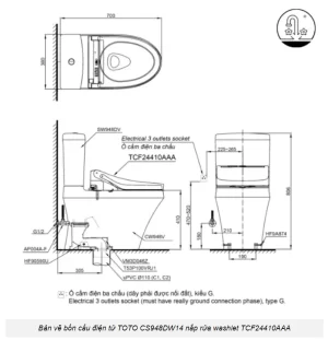
- Mã sản phẩm: CS948DW14
- Tên sản phẩm: Bồn cầu điện tử TOTO nắp rửa Washlet TCF24410AAA
- Kích thước: 700 mm x 380 mm x 806 mm (dài x rộng x cao)
- Màu sắc: Trắng
- Vật liệu: Sứ vệ sinh
- Hệ thống xả công nghệ Tornado tốc độ xoáy siêu mạnh mẽ, đánh bay mọi chất bẩn cứng đầu một cách hiệu quả và cực kì tiết kiệm nước
- Bồn được trang bị cần gạt
- Thiết kế: Thân dài
- Tâm xả: 305 mm
- Áp lực nước sử dụng trong khoảng: 0.05 ~ 0.70 MPa
- Đường kính đường thải: 6,3cm
- Nguồn điện: 220V, 50/60Hz
Lưu ý: Sản phẩm bao gồm van khóa và gioăng đế.

Bàn cầu điện tử TOTO CS948DW14 giấu dây bao gồm:
- Thân cầu: C948 – Xuất xứ: Việt Nam
- Két nước: S948D#W – Xuất xứ: Việt Nam
- Nắp rửa điện tử: TCF24410AAA (C5) – Xuất xứ: Malaysia
Các chức năng của bồn cầu TOTO CS948DW14 nắp rửa Washlet
- Có chức năng sưởi ấm nắp ngồi
- Vòi rửa tự vệ sinh trước và sau khi sử dụng bằng dung dịch điện phân E-Water+. Luôn duy trì sự sạch sẽ
- 02 chế độ rửa trước, rửa sau massage linh hoạt, điều chỉnh vị trí vòi rửa
- Chức năng sấy khô với 3 cấp độ
- Điều chỉnh nhiệt độ vòi rửa 3 cấp độ
- Sưởi ấm bệ ngồi 3 cấp độ
- Tính năng khử mùi được kích hoạt tự động
- Có bảng điều khiển từ xa (không dây) với 2 chế độ người dùng
- Thiết kế thân kín, vành kín tiện dụng cho việc vệ sinh hàng ngày
- Công nghệ CeFiONtect siêu ưu nước, hạn chế tối đa các vết bẩn, vi khuẩn
- Hệ thống xả Tornado êm, mạnh mẽ hiệu quả

Nếu bạn muốn mua bồn cầu toto chính hãng, giá tốt với nhiều ưu đãi tuyệt vời, hãy liên hệ với Không Gian Bếp Xinh qua số hotline: 1900571590. Hoặc đến trực tiếp Showroom để được nhân viên của chúng tôi hỗ trợ và tư vấn miễn phí.








Đánh giá
Chưa có đánh giá nào.