Bồn Tiểu Nam TOTO UT570T#XW Treo Tường được phân phối chính hãng tại Khánh Trang Home, giao hàng và lắp đặt miễn phí TP.HCM, bảo hành chính hãng, bảo trì nhanh tận nhà trong 2 giờ.

TÀI LIỆU MÔ TẢ SẢN PHẨM
THÔNG TIN MÔ TẢ SẢN PHẨM
Bồn Tiểu Nam UT570T thuộc dòng sản phẩm của hãng thiết bị vệ sinh cao cấp TOTO. Đang nhận được khá nhiều sự ưa chuộng và tin dùng của đông đảo khách hàng trên thị trường hiện nay. Bởi thiết kế hiện đại và chất lượng bền bỉ, an toàn tuyệt đối. Đem đến nhiều tiện nghi cho người dùng. Để hiểu rõ hơn về nó, hãy cùng Không Gian Bếp Xinh tìm hiểu ngay ở bài viết dưới đây nhé!
Đặc Điểm Của bồn Tiểu Nam TOTO UT570T
Làm từ chất liệu men sứ cao cấp. Với độ bền cao, hạn chế sự trầy xước và bề mặt sáng bóng.
Được đúc nguyên khối, mượt, ít góc cạnh và không có kẻ hở giúp cho việc vệ sinh được dễ dàng.
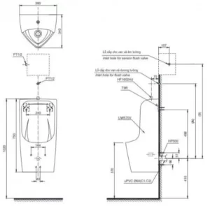
Kích thước vừa phải 380x340x750 mm. Phù hợp cho những nhà vệ sinh gia đình vừa và lớn hay những công trình vệ sinh công cộng….
Thiết kế treo tường có vách ngăn tạo không gian riêng tư.
Lòng của bồn tiểu được khoét sâu và rông rãi giúp tránh văng các tia nước và tạo sự thoải mái khi dùng.
Tích hợp công nghệ CeFiONtect, giúp cho bề mặt được nhẵn mịn và trơn bóng. Tránh các cặn bẩn bám vào bề mặt gây hiện tượng ố vàng làm mất thẩm mỹ. Ngăn chặn vi khuẩn phát triển, an toàn cho gia đình bạn.
Chế độ xả mạnh mẻ và trải đều mọi ngóc ngách đánh bay mọi vết bẩn một cách dễ dàng. Giúp cho việc vệ sinh trở nên nhanh chóng và không phải sử dụng các hóa chất tẩy rữa gây hại cho tay.
Sản phẩm này chưa bao gồm van xả tiểu. Các bạn có thể chọn lựa các loại van xả phù hợp như:
Van cảm ứng như: TTUE602DN, TTUE602AN, DUE137PBK
Van nhấn: TX501U, DU601N,…
Bản vẽ kỹ thuật của TOTO UT570T
Để dễ dàng hơn trong việc lắp đặt, các bạn có thể tham khảo thêm bản vẽ kỹ thuật sau đây:

Bồn tiểu nam TOTO uy tín, chất lượng có bán ở đâu?
Hiện nay các dòng sản phẩm bồn tiểu nam TOTO đang được bán rất đại trà trên khắp thị trường Việt Nam. Với đa dạng và phong phú các loại mẫu mã. Nhưng để tìm được một địa chỉ mua hàng uy tín và chất lượng thì ai cũng mong muốn phải không nào? Vậy thì đừng ngần ngại mà hãy đến với Không Gian Bếp Xinh – một trong những địa chỉ chuyên cung cấp thiết bị vệ sinh cao cấp hàng đầu tại Việt Nam. Với một chuỗi hệ thống từ Nam ra Bắc, đáp ứng nhu cầu chọn lựa, luôn phục vụ tận tình, giải đáp mọi thắc mắc của khách hàng. Liên hệ ngay với chúng tôi qua hotline 1900 571 590 để tìm hiểu kỹ hơn nhé!
- Số 2 đường Lương Định Của, phường Bình An, Quận 2 (Ngã tư Trần Não với Lương Đình Của), TP. Hồ Chí Minh.
- DP23, Dragon Parc 1, xã Phước Kiển, huyện Nhà Bè, TP. Hồ Chí Minh.
- 95 Phạm Văn Đồng, Mai Dịch, Cầu Giấy, Hà Nội.






Đánh giá
Chưa có đánh giá nào.