Chậu rửa chén Hafele HS-SD8648 567.20.493 được phân phối chính hãng tại Khánh Trang Home, giao hàng và lắp đặt miễn phí TP.HCM, bảo hành chính hãng, bảo trì nhanh tận nhà trong 2 giờ.

THÔNG SỐ KỸ THUẬT Chậu rửa chén Hafele HS-SD8648 567.20.493
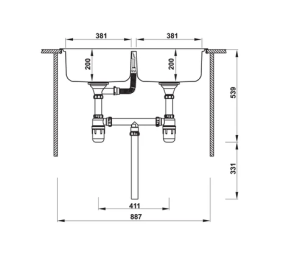
- Độ sâu bồn: 200 mm
- Độ dày: 0.8 mm
- Kích thước chậu: 860D x 480R mm
- Kích thước bồn: 380D x 408R mm
- Kích thước cắt đá: 844D x 464R mm
- Đóng gói: 1 bộ tiêu chuẩn (kèm siphon)
- Kích thước tủ đề nghị: 90 cm
- Phương thức lắp đặt: lắp nổi
- Xuất xứ: Trung Quốc

ĐẶC ĐIỂM NỔI BẬT Chậu rửa chén Hafele HS-SD8648 567.20.493
- Dễ dàng dọn dẹp và lau chùi chậu: Chất liệu inox và thiết kế bề mặt mịn giúp chậu dễ dàng vệ sinh, không dễ bám bẩn và thuận tiện cho việc lau chùi sau mỗi lần sử dụng.
- Tính thẩm mỹ, cổ điển vượt thời gian: Với thiết kế sang trọng, cổ điển và đẹp mắt, chậu rửa chén Hafele HS-SD8648 567.20.493 mang đến không gian bếp sự tinh tế và đẳng cấp, phù hợp với nhiều phong cách trang trí nội thất.
- Hoàn toàn không rỉ sét: Chậu được làm từ chất liệu inox không gỉ, giúp ngăn ngừa hiện tượng gỉ sét, đảm bảo độ bền và đẹp với thời gian sử dụng.
- Khả năng chịu nhiệt hoàn toàn: Với tính chất không bị ảnh hưởng bởi nhiệt độ cao, chậu rửa chén Hafele HS-SD8648 567.20.493 có thể chịu được nước nóng và hoạt động tốt trong môi trường bếp nấu ăn.
- Tích hợp cho thực phẩm và kháng khuẩn: Chậu có tính năng kháng khuẩn giúp ngăn chặn sự phát triển của vi khuẩn, đảm bảo an toàn và vệ sinh cho việc chế biến thực phẩm.
- Chống bám màu và bám vết bẩn: Bề mặt chậu không dễ bám màu hoặc bám vết bẩn, giữ cho chậu luôn sạch sẽ và bền bỉ trong suốt quá trình sử dụng.
- Không ố màu, bay màu để cả tiếp xúc trực tiếp với ánh sáng mặt trời: Chất liệu inox chống ố màu và không bị phai màu dưới tác động của ánh sáng mặt trời, giữ cho chậu luôn mới mẻ và bền đẹp qua thời gian.

ĐÁNH GIÁ TỔNG QUAN Chậu rửa chén Hafele HS-SD8648 567.20.493
- Thiết kế chất lượng: Chậu rửa chén Hafele HS-SD8648 được làm từ chất liệu inox không gỉ cao cấp, mang đến độ bền và đẹp trong suốt quá trình sử dụng. Thiết kế 1 hố chậu với độ sâu 200mm và độ dày 0.8mm cho phép tiếp xúc và rửa sạch các bát đĩa và đồ dùng nhà bếp dễ dàng.
- Đa dạng kiểu lắp đặt: Chậu này có thể lắp đặt âm hoặc nổi trên bàn đá, giúp linh hoạt hơn trong việc sắp xếp không gian bếp theo ý muốn và phù hợp với từng kiểu trang trí nội thất.
- Khả năng chịu nhiệt và kháng khuẩn: Chất liệu inox không chỉ giúp chậu chịu được nhiệt độ cao mà còn kháng khuẩn, giúp đảm bảo sự an toàn vệ sinh cho việc chế biến thực phẩm.
- Dễ dàng vệ sinh: Bề mặt chậu được tráng men toàn diện, không dễ bám bẩn và dễ dàng vệ sinh, ngăn ngừa sự phát triển của vi khuẩn và mảng bám.
- Tính thẩm mỹ và cổ điển: Thiết kế sang trọng, cổ điển của chậu Hafele HS-SD8648 mang đến không gian bếp sự tinh tế và đẳng cấp, thể hiện sự chú trọng đến vẻ đẹp trong thiết kế nội thất.
- Xuất xứ và đáng tin cậy: Sản phẩm được sản xuất tại Trung Quốc nhưng tuân thủ tiêu chuẩn và quy trình của Hafele Germany, đảm bảo chất lượng và đáng tin cậy trong việc sử dụng.
- Tóm lại, chậu rửa chén Hafele HS-SD8648 567.20.493 là một lựa chọn lý tưởng cho các gia đình có căn bếp nhỏ. Với tính năng ưu việt, chất lượng chắc chắn, và thiết kế đẹp mắt, sản phẩm này đáng để xem xét khi lựa chọn chậu rửa chén cho không gian bếp của bạn.


Chậu Rửa Chén Inox Hafele Blanco - Dinas 8 570.27.219
Chậu Rửa Chén Blancozia Hafele 9 Màu Đen (Zd) 567.68.340
Chậu Rửa Bát BLANCO ZENAR XL 6S Alu - Thiết Chậu 1 Hiện Đại, Thuận Tiện Sử Dụng
CHẬU ĐÁ HAFELE HS20-GKD1S60 570.30.130
Chậu Rửa Chén Inox Hafele Blanco - Plenta 6 570.27.190
CHẬU RỬA CHÉN INOX HAFELE CLAUDIUS HS-SD7744 567.20.387
CHẬU ĐÁ HAFELE HS19-GED2S80 MÀU GREY 570.35.570
Chậu đá Hafele HS19-GKD2S120 570.35.340 







Đánh giá
Chưa có đánh giá nào.