Chậu rửa bát Faster FS-8245HA được phân phối chính hãng tại Khánh Trang Home, giao hàng và lắp đặt miễn phí TP.HCM, bảo hành chính hãng, bảo trì nhanh tận nhà trong 2 giờ.

THÔNG SỐ KỸ THUẬT CHẬU RỬA BÁT FASTER FS-8245HA
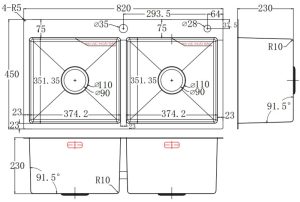
- Tên sản phẩm: Faster.FS-8245HA
- Kích thước chậu (mm): R820 x S450 x C230
- Kích thước hố lớn (mm): R370 x S350
- Kích thước hố nhỏ (mm): R370 x S350
- Kích thước khoét đá (mm): R790 x S425
- Chất liệu: Inox SUS304 (chất liệu inox 304)
- Phụ kiện đi kèm: Siphon và rổ thoát nước

ĐẶC ĐIỂM NỔI BẬT CHẬU RỬA BÁT FASTER FS-8245HA
- Đa dạng lỗ vòi: Chậu được thiết kế với 2 lỗ vòi, cho phép bạn lắp đặt vòi rửa bát và vòi lọc nước tùy theo nhu cầu sử dụng.
- Chậu 2 hố cân đối: Thiết kế chậu 2 hố cân đối mang lại sự cân đối và tinh tế cho sản phẩm, tạo nên vẻ hài hòa cho không gian bếp.
- Lòng chậu sâu tăng dung tích: Lòng chậu được thiết kế sâu hơn, giúp tăng dung tích hố chậu. Điều này giúp hạn chế bắn nước khi rửa bát, tạo sự tiện ích và thoải mái trong quá trình sử dụng.

- Thoát nước hiệu quả với thiết kế rãnh X-line: Thiết kế rãnh thoát nước X-line giúp nước thoát ra hiệu quả, ngăn tình trạng tắc nghẽn và tích tụ nước dư thừa.
- Vệ sinh dễ dàng với góc lượn R10: Góc lượn R10 ở đáy chậu giúp việc vệ sinh trở nên dễ dàng hơn, ngăn bám bẩn và tạo sự thông thoáng.
- Lắp đặt linh hoạt: Chậu cho phép lắp đặt dương, âm hoặc bán âm mặt đá, tùy thuộc vào phong cách và thiết kế không gian bếp của bạn.
ĐÁNH GIÁ TỔNG QUAN CHẬU RỬA BÁT FASTER FS-8245HA
- Chế tạo thủ công, công nghệ handmade: Sản phẩm được chế tạo bằng công nghệ thủ công, tạo nên sự tỉ mỉ và tinh tế trong từng chi tiết.
- Bề mặt hoàn thiện xước mờ: Bề mặt của chậu được hoàn thiện một cách tinh xảo với hiệu ứng xước mờ, giúp chống bám dầu và mỡ, dễ dàng vệ sinh và duy trì sự sạch sẽ.
- Chất liệu inox 304 tiêu chuẩn châu Âu: Chậu được làm từ chất liệu inox 304, tuân thủ tiêu chuẩn châu Âu, mang lại sự bền bỉ và độ an toàn cho sức khỏe.
- Ngăn hiện tự ngưng tụ nước mặt sau: Lớp sơn phủ chống thấm ngược giúp ngăn hiện tượng tự ngưng tụ nước mặt sau chậu, giúp duy trì sự khô ráo và sạch sẽ.
- Triệt tiêu tiếng ồn và va chạm: Tấm chống ồn mặt sau chậu làm từ vật liệu cao su tổng hợp với độ dày tiêu chuẩn 3mm giúp giảm tiếng ồn và tác động va chạm trong quá trình sử dụng.
- Hệ thống thoát nước và ngăn mùi hôi cải tiến: Siphon cải tiến giúp thoát nước nhanh chóng và ngăn mùi hôi từ ống thoát thải.
- Kháng khuẩn và ức chế sinh trưởng vi khuẩn: Bát rác được thiết kế kháng khuẩn, ức chế hiệu quả sự sinh trưởng của vi khuẩn, giữ cho không gian bếp luôn trong trạng thái sạch sẽ.
- Tốc độ xả tăng lên đến 30% với tay thoát tràn vuông hiện đại: Thiết kế tay thoát tràn vuông hiện đại giúp tăng tốc độ xả nước lên đến 30%, tạo sự tiện ích trong quá trình sử dụng.
- Tổng cộng, chậu rửa bát Faster FS-8245HA không chỉ mang đến tính năng vượt trội mà còn tạo nên vẻ đẹp và tính thẩm mỹ cho không gian bếp của bạn.





Đánh giá
Chưa có đánh giá nào.