Máy Sấy Tay TOTO TYC122W Treo Tường được phân phối chính hãng tại Khánh Trang Home, giao hàng và lắp đặt miễn phí TP.HCM, bảo hành chính hãng, bảo trì nhanh tận nhà trong 2 giờ.

Máy sấy tay TOTO TYC122W đang được sử dụng rộng rãi trong nhà vệ sinh của các toàn nhà văn phòng, trung tâm thương mại, nhà hàng, khách sạn,…Dùng để thay thế khăn giấy, hong khô bàn tay. Vừa giúp vệ sinh, bảo vệ sức khỏe cho người dùng. Vừa đảm bảo tính thẩm mỹ cao cho không gian được lắp đặt.
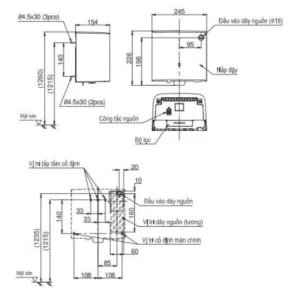
Thông tin chi tiết máy sấy tay TOTO TYC122W treo tường
| Mã sản phẩm | TYC122W |
| Nguồn điện tiêu thụ | AC 220~240 (V) |
| Công suất tối đa | 545~585 (W) |
| Thời gian sấy | 15 (S) |
| Độ ồn | 49 (dB) |
| Chất liệu | Nhựa PP |
| Trọng lượng | 3kg |
| Kích thước (mm) | 154x245x226 (mm) |
| Xuất xứ | Trung Quốc |
Ưu điểm nổi bật của sản phẩm
Kiểu dáng hiện đại, thiết kế nhỏ gọn, tiết kiệm không gian lắp đặt.
Chất liệu nhựa PP cao cấp giúp giữ bền sản phẩm.
Thời gian sấy khô chậm hơn dòng cao cấp khác nhưng bù lại độ ồn thấp.
Chức năng sấy khô từ luồng khí tốc độ cao, thổi những giọt nước ra khỏi tay.
Khả năng sấy khô siêu tốc của sản phẩm giúp tiết kiệm điện, tiết kiệm thời gian, thay thế phương pháp giấy vệ sinh, mang lại sự sạch sẽ tiện nghi.
Dưới đây là bản vẽ kỹ thuật của sản phẩm, xem thêm để thuận tiện hơn trong việc lắp đặt nhé!
Lợi ích khi dùng mấy sấy tay
– Tiết kiệm được nhiều chi phí.
– Đảm bảo an toàn cho sức khỏe.
– Góp phần bảo vệ môi trường.
Mọi thông tin chi tiết, quý khách vui lòng liên hệ vào đường dây nóng của Không Gian Bếp Xinh để được nhân viên tư vấn kỹ hơn và hỗ trợ chọn lựa thêm nhiều sản phẩm đồ vệ sinh TOTO phù hợp. Hoặc đến tại địa chỉ cửa hàng gần nhất để trải nghiệm trực tiếp và tham quan nhé!





Đánh giá
Chưa có đánh giá nào.