Phễu Thoát Sàn TOTO TVBA413 được phân phối chính hãng tại Khánh Trang Home, giao hàng và lắp đặt miễn phí TP.HCM, bảo hành chính hãng, bảo trì nhanh tận nhà trong 2 giờ.

Thoát sàn TOTO TVBA413 là mẫu phểu thoát sàn trong dòng phụ kiện TOTO được sử dụng phổ biến tại nhiều gia đình hiện nay. Thoát sàn ngăn mùi cao cấp này có tác dụng giữ nước không bị tràn ngược từ ống thải lên, ngăn chặn mùi hôi quay trở lại phòng tắm. Ngoài ra, phễu thoát sàn còn có tác dụng lọc rác, ngăn côn trùng từ ống thải bò lên. Dễ dàng lắp đặt nên được nhiều người dùng ưa chuộng. Cùng Không Gian Bếp Xinh đi đánh giá chi tiết về mẫu thoát sàn này nhé!

Thông tin Phểu thoát sàn TOTO TVBA413
Mã: TVBA413
Tên sản phẩm: Phểu thoát sàn TOTO TVBA413
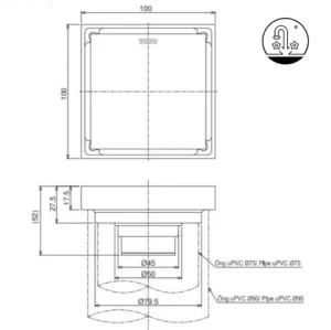
Kích thước / Size : 100 x 100 x 40 (mm)
Lắp đặt ống thoát nước thải đường kính: 60mm
Vẫn có thể dùng ống thoát phi 90mm nhưng đề xuất là phi 60 mm
Chất liệu: Đồng thau
Mạ: Niken Crom
Xuất xứ: Trung Quốc
Chứng nhận chất lượng: Tiêu chuẩn quốc tế về quản lý chất lượng ISO-9001 & Tiêu chuẩn quốc tế về quản lý môi trường ISO-14001
Bảo hành 2 năm
Ưu điểm nỗi bật của thoát sàn ngăn mùi cao cấp TOTO TVBA413
Thoát sàn chống mùi hôi còn có tác dụng ngăn nước tràn ngược lại lên nền nhà tắm.
Ngăn chặn rác, tóc rụng, cặn bẩn không trôi xuống cống thoát nước như các loại thoát sàn thông thường. Giúp thoát nước sàn nhanh chóng.
Có thiết kế mặt kín không lưới nên giúp ngăn chặn mùi hôi và nước thải hiệu quả cực tốt. Chất bẩn hạn chế bị bám dính lên bề mặt kín của sản phẩm.
Được hoàn thiện cao cấp với lớp mạ Niken Crom nhiều lớp đảm bảo sản phẩm không bị rỉ sét, chống ăn mòn, đúc dày nguyên khối không dễ gì bị biến dạng. Sản phẩm thiết kế đẹp, phần lõi được làm bằng đồng thau chất lượng cao, khuôn ép một mảnh, nổi bật.
Bản vẽ kỹ thuật của ga thoát sàn ngăn mùi TVB413 TOTO
Các sản phẩm mới nhất của hãng thiết bị vệ sinh TOTO cũng như các loại phụ kiện nhà tắm TOTO chính hãng khác. Luôn được Không Gian Bếp Xinh cập nhật liên tục trên hệ thống website.
Nếu bạn đang có nhu cầu mua thiết bị vệ sinh chính hãng với mức giá bán tốt nhất. Hãy đến với Không Gian Bếp Xinh – Hệ thống Showroom thiết bị vệ sinh và thiết bị nhà bếp số 1 Việt Nam. Hoặc liên hệ ngay Hotline 1900 571 590 để được hỗ trợ.

Bồn cầu TOTO MS855DT8
FRANKE | Chậu rửa Inox BCX 621 RHD (101.0469.276)
CHẢO CHỐNG DÍNH FABER FB-KX 






Đánh giá
Chưa có đánh giá nào.