Trọn bộ cửa trượt phòng tắm Oval – Ray 2000mm Hafele 981.06.320 được phân phối chính hãng tại Khánh Trang Home, giao hàng và lắp đặt miễn phí TP.HCM, bảo hành chính hãng, bảo trì nhanh tận nhà trong 2 giờ.

Trọn bộ cửa trượt phòng tắm Oval – Ray 2000mm Hafele 981.06.320
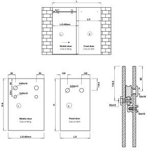
Đặc điểm kĩ thuật:
> Cho cửa trượt 1 cánh
> Độ dày kính: 8 – 10 mm
> Khối lượng cửa: ≤ 60 kg
> Vật liệu: Inox 304
> Màu bóng







Đánh giá
Chưa có đánh giá nào.