Vòi Lavabo INAX LFV-5012SH Nóng Lạnh Thân Cao được phân phối chính hãng tại Khánh Trang Home, giao hàng và lắp đặt miễn phí TP.HCM, bảo hành chính hãng, bảo trì nhanh tận nhà trong 2 giờ.

Vòi Lavabo Inax LFV-5012SH với hai chế độ nóng lạnh. Vòi chậu này vốn là donngf vòi chậu đặt bàn nên có kiểu dáng hơi cao. Chất lượng sản phẩm cũng được thiết bị vệ sinh Inax chú trọng. Khi đầu vào sản phẩm cũng như chất lượng đầu vào đều được nghiên cứu, kiểm tra kĩ càng. Với chất liệu đồng mạ crom sáng bóng bền lâu với thời gian. Đây là ưu điểm giứ cho khách hàng luôn ưu tiên đặt mua sản phẩm này.
Đặc điểm của Vòi Lavabo Inax LFV-5012SH Đặt Bàn Nóng Lạnh
– Vòi lavabo INAX LFV-5012SH cổ cao dùng cho lavabo đặt bàn đến từ thương hiệu thiết bị vệ sinh INAX
– Áp lực nước : 0.05 MPa ~ 0.75 MPa
– Van ceramic. Lõi sen vòi có hai đĩa sứ điều nhiệt họat động trơn chu, linh phụ kiện độ bền cao cho sen vòi luôn bên bỉ.
– Lớp mạ Cr/Ni chất lượng cao. Thân vòi đúc đồng, giảm thiểu tạp chất chì và kim loại nặng theo tiêu chuẩn Nhật Bản nên sản phẩm chắc nặng, bền bỉ và tốt cho sức khỏe
– Kết cấu bên trong vững vàng. Ba lớp mạ Cr/Ni trên chất liệu đồng có do nguyên chât cao theo tiêu chuẩn Nhật Bản, giữ bề mặt sen vòi luôn sáng bóng lâu dài.
– Van điều khiển bằng sứ có độ bền cao
– Sản phẩm bao gồm trụ xả nhấn bằng niken và crom, không bao gồm ống thải chữ
-khi sử dụng sản phẩm các bạn nên lưu ý không nên dùng những chất tẩy rửa có tính axit mạnh. Việc dùng những chất này sẽ làm hư hại và bào mòn sản phẩm. Cách tốt nhất chúng ta chỉ nên dùng khăn bông thấm nước nóng để sử dung,
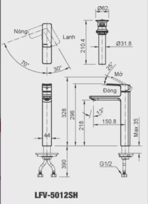
Bản vẽ kỹ thuật vòi lavabo INAX LFV-5012SH

Bạn nên tham khảo bản vẽ này trước khi lắp đặt tại nhà nhé
LH: 091 9999 516 Mr Thịnh – 098 6666 516 Ms Vân
Địa chỉ 5A đường số 5, Kp4, P An Phú, Quận 2, HCM





Đánh giá
Chưa có đánh giá nào.