Bồn Cầu Điện Tử TOTO CS986GW7#XW Kèm Nắp Rửa Điện Tử WASHLET Dòng C2 – TCF6631A (220V) được phân phối chính hãng tại Khánh Trang Home, giao hàng và lắp đặt miễn phí TP.HCM, bảo hành chính hãng, bảo trì nhanh tận nhà trong 2 giờ.

Bồn cầu ToTo CS986GW7 có thiết kế 2 khối với thân và vành kín vô cùng tiện dụng. Sử dụng hệ thống xả Tornado hiện đại giúp dòng xả chảy êm không ít tiếng ồn nhưng mạnh mẽ hiệu quả. Ngoài ra, thiết bị này còn trang bị nhiều tính năng tự động như phun sương làm sạch lòng bàn cầu và vòi rửa, khử mùi hôi….
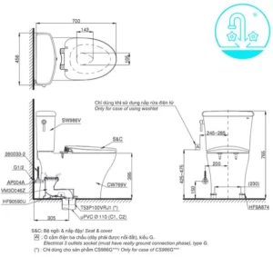
Thông số kỹ thuật của sản phẩm
- Model: CS986GW7
- Loại: Bồn cầu 2 khối nắp rửa điện tử WASHLET
- Kích thước: 700D x 456W x 765H mm
- Màu sắc: Trắng
- Hệ thống xả: Tornado với hai chế độ (4.5L/3L)
- Tâm xả: 305 mm
- Áp lực nước: 0.05 ~ 0.70 MP
- Nguồn điện: 220V, 50/60Hz
- Lưu ý: Bao gồm bích nối sàn, van dừng
Bản vẽ kỹ thuật ToTo CS986GW7
Bản vẽ kỹ thuật của bồn cầu thông minh ToTo CS986GW7, tham khảo hình dưới đây để nắm thêm thông tin nhé!

Tham khảo trọn bộ sản phẩm tại: Bồn cầu toto, bồn cầu toto 2 khối, bồn cầu toto thông minh, bồn cầu, thiết bị vệ sinh toto





Đánh giá
Chưa có đánh giá nào.