Cửa trượt xoay bằng gỗ cao 1250 – 1850 mm Hafele 408.30.590 được phân phối chính hãng tại Khánh Trang Home, giao hàng và lắp đặt miễn phí TP.HCM, bảo hành chính hãng, bảo trì nhanh tận nhà trong 2 giờ.

CỬA TRƯỢT XOAY HAWA CONCEPTA HAFELE
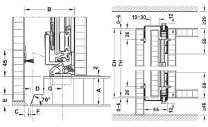
• Chiều rộng cửa: ≤750 mm
• Đối với chiều cao cửa: 1250 – 1850 mm
• Đối với trọng lượng cửa: 10 – 25 kg
• Trọn bộ gồm
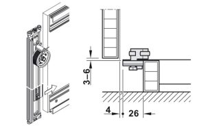
1 thanh chống với 2 ray trượt
1 bộ khung xếp chéo với 2 thanh dẫn hướng cho khung xếp chéo
3 bản lề âm
1 thanh đệm
2 ray dẫn hướng
1 bas chặn cửa có bas kẹp chặn cửa
3 thanh thay thế và 3 bàn chải thay thế
1 cặp nắp che
1 đệm giảm chấn
1 cơ chế tự đóng cho cửa
1 cơ chế tự đóng và giảm chấn
Phụ kiện lắp đặt







Đánh giá
Chưa có đánh giá nào.