Cửa trượt xoay lắp bên trái (lọt lòng/trùm ngoài) cao 1851 – 2600 mm Hafele 408.31.010 được phân phối chính hãng tại Khánh Trang Home, giao hàng và lắp đặt miễn phí TP.HCM, bảo hành chính hãng, bảo trì nhanh tận nhà trong 2 giờ.

BỘ PHỤ KIỆN CỬA TRƯỢT XOAY (LỌT LÒNG / TRÙM NGOÀI) HAWA FOLDING CONCEPTA 25 HAFELE
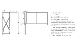
• Chiều rộng cửa: 300 – 700 mm
• Chiều cao cửa: 1851 – 2600 mm
• Trọng lượng cửa: ≤25 kg
• Độ dày cửa: 19 – 26 mm
• Phiên bản: Bản lề với cơ chế đóng giảm chấn




Đánh giá
Chưa có đánh giá nào.