Nắp Rửa Điện Tử Washlet TOTO TCF6632A#NW1 Dòng C2 được phân phối chính hãng tại Khánh Trang Home, giao hàng và lắp đặt miễn phí TP.HCM, bảo hành chính hãng, bảo trì nhanh tận nhà trong 2 giờ.

TÀI LIỆU MÔ TẢ SẢN PHẨM
THÔNG TIN MÔ TẢ SẢN PHẨM
Nắp rửa điện tử Washlet (220V) TCF6632A là một sản phẩm tuyệt vời của thương hiệu thiết bị vệ sinh TOTO. Chiếc nắp thông minh ToTo này còn có tên gọi khác là nắp W8. Hãy cùng siêu thị Không Gian Bếp Xinh chúng tôi đi tìm hiểu nhé.
Đặc điểm của nắp bồn cầu điện tử ToTo TCF6632A (W8)
Thiết kế: Thân dài, điều khiển từ xa
Áp lực nước: 0.05MPa ~ 0.75MPa
Nguồn điện: 220V/50/60Hz 410W dễ dàng lắp đặt tại Việt Nam
Vật liệu : Nhựa cao cấp cực kỳ bền đẹp theo thời gian
Màu sắc : Màu trắng tinh tế và thể hiện được cá tính của gia chủ
Xuât xứ:Sản phẩm được sản xuất tại Malaysia với công nghệ tiên tiến nhất đến từ Nhật Bản,
Có chức năng sưởi ấm nắp ngồi
Tự động phun sương làm sạch lòng bồn cầu và vòi rửa bằng cách ngăn vi khuẩn đảm bảo vệ sinh
02 chế độ rửa trước, rửa sau massage linh hoạt, điều chỉnh vị trí vòi rửa
Điều chỉnh nhiệt độ sấy, nước và bệ ngồi. Đây chắc hẳn là một sự lựa chọn tuyệt vời cho các bạn bắc bộ vào mùa đông
Tính năng khử mùi được kích hoạt tự động
Có bảng điều khiển bên cạnh nắp điện tử giúp bạn có thể dễ dàng sử dụng.
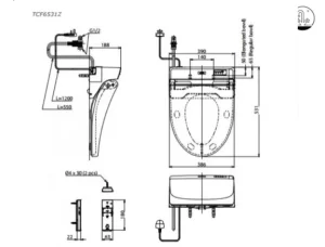
Dưới đây là bản vẽ kỹ thuật của nắp rửa thông minh này nhé. Xem ngay trước khi lắp đặt nhé mọi người
Nếu bạn đang có nhu cầu mua nắp bàn cầu ToTo này hay các sản phẩm cao cấp khác đến từ thiết bị vệ sinh cao cấp ToTo có thể liên hệ ngay với siêu thị thiết bị vệ sinh Không Gian Bếp Xinh chúng tôi qua hotline 0934.36.36.26 or 098.6666.516








Đánh giá
Chưa có đánh giá nào.