Vòi Lavabo TOTO TLE26006A Cảm Ứng Tự Động được phân phối chính hãng tại Khánh Trang Home, giao hàng và lắp đặt miễn phí TP.HCM, bảo hành chính hãng, bảo trì nhanh tận nhà trong 2 giờ.

Vòi cảm ứng lavabo TOTO TLE26006A hiện đang được ưa chuộng bởi sự tiện lợi và thông minh. Tìm hiểu chi tiết sản phẩm ngay tại đây!
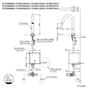
Thông tin kỹ thuật
- Mã: TLE26006A
- Kích thước chiều cao vòi: 205 mm (H)
- Áp lực nước sử dụng: 0.05 ~ 0.75 (MPa)
- Vật liệu: Đồng mạ Niken-Crom
- Màu sắc: Mạ chrome bóng
- Loại: Vòi cảm ứng gắn chậu
- Chế độ nước: Lạnh
- Nhiệt độ cấp nước: 4~90°C
- Lượng xả nước: 2 L/phút
- Tình trạng: Còn hàng
- Xuất xứ: Nhật Bản
- Bảo hành: 2 năm
Sản phẩm chưa bao gồm bộ điều khiển, van dừng, van kiểm soát nhiệt độ.
Gợi ý sử dụng vòi TLE26006A với bộ cảm ứng theo tính năng
- Dùng điện, nước lạnh: TLE01502A1/TLN01102A
- Tự tái tạo, nước lạnh: TLE03502A1/TLN01102A
- Dùng pin, nước lạnh: TLE04502A1/TLN01102A
- Dùng pin, nhiệt độ: TLE04502A1/TLN01103A/TLE05701A
- Dùng điện, nhiệt độ: TLE01502A1/TLN01103A/TLE05701A
- Tự tái tạo, nhiệt độ: TLE03502A1/TLN01103A/TLE05701A
Tính năng vòi rửa tay cảm ứng TLE26006A TOTO
- Công nghệ tự động không cần chạm vào vòi rửa. Sử dụng rảnh tay giúp nâng cao tính vệ sinh
- Cảm biến chất lượng được đặt bên dưới đầu vòi để phát hiện người dùng tức thì, chính xác hơn
- Công nghệ SELF POWER: Nguồn điện tự tạo giúp tiết kiệm điện (Bộ điều khiển TLE03502A)
- Tiết kiệm nước
- Công nghệ ECO CAP: Công nghệ bọt khí TOTO bổ sung không khí vào nước để tia nước có hiệu suất tốt nhất
Bản vẽ vòi chậu cảm ứng TOTO TLE26006A


Hiện vòi lavabo TOTO TL26006A đang được bán tại Không Gian Bếp Xinh với giá cực tốt cùng nhiều chương trình khuyến mại vô cùng khủng. Gọi ngay đến HOTLINE 1900 571 590 để đặt hàng hoặc đến ngay showroom Không Gian Bếp Xinh gần nhất để mua sắm bạn nhé!







Đánh giá
Chưa có đánh giá nào.